Separate or Parallel Excitation DC Machine

Description of the Separate or Parallel Excitation DC Machine component in Schematic Editor.

Figure 1. Separate or Parallel Excitation DC Machine component in Typhoon HIL Schematic Editor

A1 and A2 are the rotor (armature) winding terminals. F1 and F2 are the stator (field) winding terminals. Both the stator and rotor winding use the single phase variant of the current source interface.

Electrical sub-system model

The electrical part of the machine is represented by the following system of equations. All electrical variables and parameters of the armature circuit are marked with the subscript a, and variables and parameters of the field winding circuit are denoted with the subscript f.

. v a v f = R a 0 0 R f i a i f + d d t ψ a ψ f + ω r ψ 0

ψ a ψ f = L a 0 0 L f i a i f

ψ = L a f i f

T e = ψ i a

Table 1. Electrical sub-system model variables and parameters
symbol description
ψ Motor flux linkage [Wb]
ψa Armature (rotor) winding flux [Wb]
ψf Field (stator) winding flux [Wb]
ia Armature (rotor) winding current [A]
if Field (stator) winding current [A]
va Armature (rotor) winding voltage [V]
vf Field (stator) winding voltage [V]
Ra Armature (rotor) winding resistance [Ω]
Rf Field (stator) winding resistance [Ω]
La Armature (rotor) winding inductance [H]
Lf Field (stator) winding inductance [H]
Laf Mutual inductance between armature and field windings [H]
ωr Rotor electrical speed [rad/s] ( = p ω m )
p Machine number of pole pairs
Te Machine developed electromagnetic torque [Nm]

Mechanical sub-system model

Motion equation:

d ω m d t =   1 J m ( T e - T l - b ω m )

θ m =   ω m d t
Table 2. Mechanical sub-system model variables
Symbol Description
ωm Rotor mechanical speed [rad/s]
Jm Combined rotor and load moment of inertia [kgm2]
Te Machine developed electromagnetic torque [Nm]
Tl Shaft mechanical load torque [Nm]
b Machine viscous friction coefficient [Nms]
θm Rotor mechanical angle [rad]
Note: Motion equation is the same for all of the rotating machine models.

Ports

  • A1 (electrical)
    • Rotor (armature) winding port 1.
  • A2 (electrical)
    • Rotor (armature) winding port 2.
  • F1 (electrical)
    • Stator (field) winding port 1.
  • F2 (electrical)
    • Stator (field) winding port 2.
  • in
    • Available if Model Load source is selected

Electrical (Tab)

  • Ra
    • Armature (rotor) winding resistance [Ω]
  • Rf
    • Field (stator) winding resistance [Ω]
  • La
    • Armature (rotor) winding inductance [H]
  • Lf
    • Field (stator) winding inductance [H]
  • Laf
    • Mutual inductance between armature and field windings [H]

Mechanical (Tab)

  • Jm
    • Combined rotor and load moment of inertia [kgm2]
  • Friction coefficient
    • Machine viscous friction coefficient [Nms]
  • Unconstrained mechanical angle
    • Limiting mechanical angle between 0 and 2π

Load (Tab)

  • Load source
    • Load source can be set from SCADA/external or from model (in model case, one signal processing input will appear).
    • In TyphoonSim, if SCADA/external is chosen as Load source, analog signals are read from the internal virtual IO bus. Hence, if some signal is sent to analog ouput 1, it will appear on analog input 1.
  • External/Model load type
    • Load type: torque or speed
  • Load ai pin
    • Load ai pin for external torque/speed command.
    • In real-time/VHIL simulation, Load ai pin represent HIL analog input address for external torque command.
    • In TyphoonSim, analog signals are read from the internal virtual IO bus. Hence, if some signal is sent to analog ouput 1, it will appear on analog input 1.
    • Available only if SCADA/external is set as Load source.
  • Load ai offset
    • Assigned offset value to the input signal representing external torque command.
    • Available only if SCADA/external is set as Load source.
  • Load ai gain
    • Assigned gain value to the input signal representing external torque command.
    • Available only if SCADA/external is set as Load source.

External load enables you to use an analog input signal from a HIL/TyphoonSim (internal virtual IO bus in TyphoonSim) analog channel with the load_ai_pin address as an external torque/speed load, and to assign offset (V) and gain (Nm/V) to the input signal, according to the formula:

T l = l o a d _ a i _ g a i n · ( A I ( l o a d _ a i _ p i n ) + l o a d _ a i _ o f f s e t)

Note: An analog input pin may be overwritten if another component uses the same analog input pin. If another property (from the same or a different component) uses the same analog input pin, the input signal value will be applied to only one of those properties. For instance, if both the load and the resolver carrier signal use the same analog input pin, the signal value will only be applied only to one of these.

Feedback (Tab)

  • Encoder ppr
    • Incremental encoder number of pulses per revolution
  • Encoder Z pulse length
    • Z digital signal pulse length in periods. Can be Quarter length or Full period (default)
  • Resolver pole pairs
    • Resolver number of pole pairs
  • Resolver carrier source
    • Resolver carrier signal source selection (internal or external)
  • Resolver carrier frequency
    • Resolver carrier signal frequency (internal carrier) [Hz]
    • Available only if the Resolver carrier source property is set to internal
  • External resolver carrier source type
    • External resolver carrier signal source type selection (single ended or differential)
    • Available only if the Resolver carrier source property is set to external
  • Resolver ai pin 1
    • Resolver carrier input channel 1 address (external carrier)
    • Available only if the Resolver carrier source property is set to external
    • In TyphoonSim, analog signals are read from the internal virtual IO bus. Hence, if some signal is sent to analog ouput 1, it will appear on analog input 1.
  • Resolver ai pin 2
    • Resolver carrier input channel 2 address (external carrier)
    • Available only if the Resolver carrier source property is set to externaland External resolver carrier source type property is set to differential
    • In TyphoonSim, analog signals are read from the internal virtual IO bus. Hence, if some signal is sent to analog ouput 1, it will appear on analog input 1.
  • Resolver ai offset
    • Resolver carrier input channel offset (external carrier)
    • Available only if the Resolver carrier source property is set to external
    • In TyphoonSim, analog signals are read from the internal virtual IO bus. Hence, if some signal is sent to analog ouput 1, it will appear on analog input 1.
  • Resolver ai gain
    • Resolver carrier input channel gain (external carrier)
    • Available only if the Resolver carrier source property is set to external
    • In TyphoonSim, analog signals are read from the internal virtual IO bus. Hence, if some signal is sent to analog ouput 1, it will appear on analog input 1.
  • Absolute encoder protocol
    • Standardized protocol providing the absolute machine encoder position.
    • Absolute encoder protocol is ignored in TyphoonSim. Changing its value will not affect TyphoonSim simulation at all.
  • Singleturn bits
    • Number of machine absolute encoder singleturn bits.
    • Available only if Absolute encoder protocol is not None.
    • Absolute encoder protocol is ignored in TyphoonSim. Changing its value will not affect TyphoonSim simulation at all.
  • Enable multiturn
    • Enables multiturn absolute encoder support.
    • Available only if Absolute encoder protocol is not None.
    • Absolute encoder protocol is ignored in TyphoonSim. Changing its value will not affect TyphoonSim simulation at all.
  • Multiturn bits
    • Number of machine absolute encoder multiturn bits.
    • Available only if Enable multiturn is checked.
    • Absolute encoder protocol is ignored in TyphoonSim. Changing its value will not affect TyphoonSim simulation at all.
  • EnDat/SSI/BiSS clock DI pin
    • Clock digital input pin for the chosen absolute encoder protocol type.
    • Available only if Absolute encoder protocol is not None.
    • Absolute encoder protocol is ignored in TyphoonSim. Changing its value will not affect TyphoonSim simulation at all.
  • Clock DI logic
    • Clock DI pin logic: active high/active low.
    • Available only if Absolute encoder protocol is not None.
    • Absolute encoder protocol is ignored in TyphoonSim. Changing its value will not affect TyphoonSim simulation at all.
  • EnDat data DI pin
    • EnDat data digital input pin.
    • Available only if Absolute encoder protocol is EnDat.
    • Absolute encoder protocol is ignored in TyphoonSim. Changing its value will not affect TyphoonSim simulation at all.
  • Data DI logic
    • EnDat data DI pin logic: active high/active low.
    • Available only if Absolute encoder protocol is EnDat.
    • Absolute encoder protocol is ignored in TyphoonSim. Changing its value will not affect TyphoonSim simulation at all.

If an external resolver carrier source is selected, the source signal type can be set as either single ended or differential. The single ended external resolver carrier source type enables use of an analog input signal from the HIL/TyphoonSim (internal virtual IO bus in TyphoonSim) analog channel with the res_ai_pin_1 address as the external carrier source. Additionally, offset (V) and gain (V/V) values can be assigned to the input signal, according to the formula:

r e s _ c a r r _ s r c = r e s _ a i _ g a i n · ( A I ( r e s _ a i _ p i n _ 1 ) + r e s _ a i _ o f f s e t )

The differential external resolver carrier source type enables use of two analog input signals from the HIL/TyphoonSim (internal virtual IO bus in TyphoonSim) analog channels with the res_ai_pin_1 and the res_ai_pin_2 addresses. Analog signals from these HIL/TyphoonSim (internal virtual IO bus in TyphoonSim) analog inputs are subtracted, and the resulting signal is used as the external differential carrier source. Additionally, offset (V) and gain (V/V) values can be assigned to the input signal (similarly to the single ended case), according to the formula:

r e s _ c a r r _ s r c = r e s _ a i _ g a i n · ( ( A I ( r e s _ a i _ p i n _ 1 ) - A I ( r e s _ a i _ p i n _ 2 ) ) + r e s _ a i _ o f f s e t )
Note: In real-time/VHIL simulation, differential external resolver signal support is available from the 2023.1 software version. Only the single ended external resolver option was available in previous software versions.
Note: In order to get a resolver signal with an amplitude of 1 when using an external carrier signal, the offset and the gain should be chosen in such a way that the resolver carrier signal has an amplitude of 1 after the adjustment. As shown in Figure 2, the sinusoidal signal used to generate external resolver carrier source is fed to HIL/TyphoonSim (internal virtual IO bus in TyphoonSim) analog input 1. The analog input signal is scaled in order to get the resolver signals with an amplitude of 1.
Figure 2. Machine resolver signals
Note: An analog input pin may be overwritten if another component uses the same analog input pin. If another property (from the same or a different component) uses the same analog input pin, the input signal value will be applied to only one of those properties. E.g. if both the load and the resolver carrier signal use the same analog input pin, the signal value will be applied only to one of these.

The following expression must hold in order to properly generate the encoder signals:

4 · e n c _ p p r · f m · T s 1
Table 3. Variables in the encoder limitation expression
symbol description
enc_ppr Encoder number of pulses per revolution
fm Rotor mechanical frequency [Hz]
Ts Simulation time step [s]
Figure 3. Machine encoder signals when Full period option is selected
Figure 4. Machine encoder signals when Quarter period option is selected
Note: While the machine speed is positive, the encoder channel B signal leads the encoder channel A signal.
Note: Absolute encoder protocol is not supported on HIL402 (configurations: 1, 2, 3, and 4).
Note: More information about absolute encoder protocol could be found here.

Snubber (Tab)

  • Rsnb rotor
    • Rotor snubber resistance value [Ω]
  • Rsnb stator
    • Stator snubber resistance value [Ω]

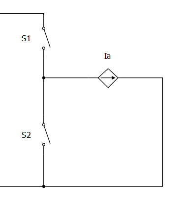
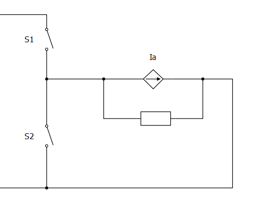
All machines with current source based circuit interfaces have a Snubber tab in the properties window where the value of snubber resistance can be set. Snubbers are necessary in the cases when an inverter or a contactor is directly connected to the machine terminals. This value can be set to infinite (inf), but it is not recommended when a machine is directly connected to the inverter since there will be a current source directly connected to an open switch. In this case, switch pair S1 and S2 will be forced closed by the circuit solver in order to avoid the topological conflicts. On the other hand, with finite snubber values, there's always a path for the current Ia so all inverter switches can be open in this case. Circuit representations of this circuit without and with snubber resistors are shown in Figure 5 and Figure 6 respectively. Snubbers are connected across the current sources.

Figure 5. Circuit representation of a DC machine and inverter when all the switches are open without resistors (not recommended)
Figure 6. Circuit representation of a DC machine and inverter when all the switches are open with resistors (recommended)
Note: Snubbers exist only in the machine components that have a current source based circuit interface.
Note: Snubbers are dynamic, which means that a snubber is dynamically added to circuit modes where topological conflicts are detected.

Output (Tab)

This block tab enables a single, vectorized signal output from the machine. The output vector contains selected machine mechanical and/or electrical variables in the same order as listed in this tab.

Note: All machine components have the Execution rate, Electrical torque, Mechanical speed, and Mechanical angle, but the rest of the signals differ from component to component.
  • Execution rate
    • Signal processing output execution rate [s]
  • Electrical torque
    • Machine electrical torque [Nm]
  • Mechanical speed
    • Machine mechanical angular speed [rad/s]
  • Mechanical angle
    • Machine mechanical angle [rad]
  • Field winding flux
    • Field flux [Wb]
  • Armature winding emf
    • Armature induced back emf [V]

Extras (Tab)

The Extras tab gives you the opportunity to set Signal Access Management for the component.

Signal visibility is calculated based on the 'signal_access' property and whether or not a parent component in its hierarchy is locked or not. Components that are not contained within locked components expose their signals regardless of the 'signal_access' property. The 'signal_access' property can have one of three values:
  • Public - Components marked as public expose their signals on all levels.
  • Protected - Components marked as protected will hide their signals to components outside of their first locked parent component.
  • Inherit - Components marked as inherit will take the nearest parent 'signal_access' property value that is set to a value other than inherit.